streetscape++.jpg

side entry+.jpg

parking lot+++++.jpg

main space-light.jpg

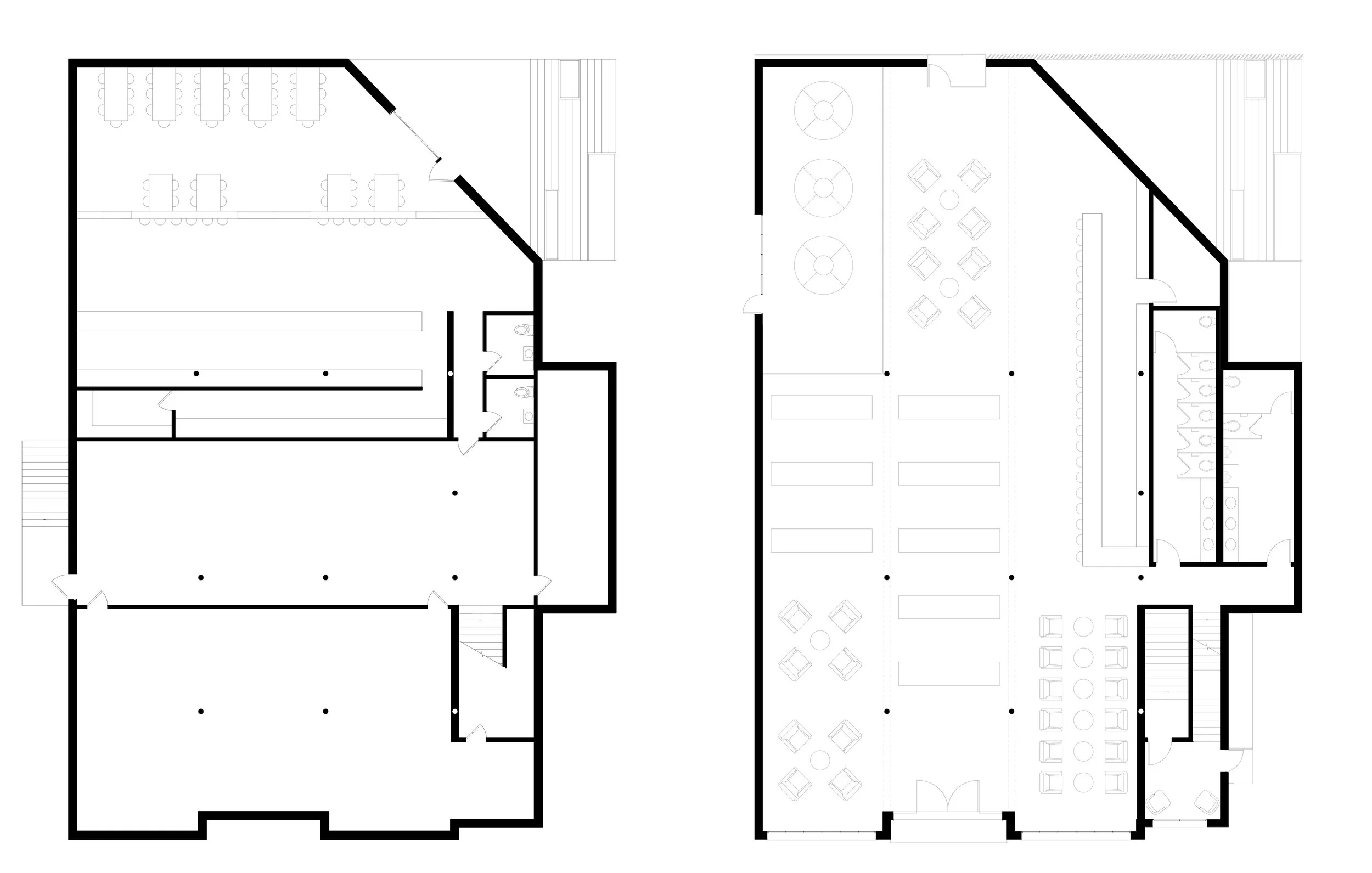
Brewery and Delicatessen Floor Plans

loft space-painting.jpg

Apartment Unit Floor Plans

siteplan-birdseye+.jpg

site plan-BW.jpg

Site Plan

The 11th Street Station in central Michigan City (Arthur Gerber, 1927) was built in 1927 as a pioneering piece of multimodal public transportation infrastructure. The Station was originally conceived as a waiting area point where system users would transfer between a bus and an electric train. The historic train station has been sitting dormant since 1987, looking to be restored and inserted back into the urban fabric of Michigan City. Under new direction the once admired beaux-arts style architecture of the original train station will be restored back to its original grandeur with a new emphasis on restructuring the program of the space to reinstate itself back as a vibrant and bustling summer beach town destination. The first level of the old 15,000 square foot structure will be renovated to house a new brewery and delicatessen shop to complement the over two dozen other breweries and wineries from South Chicago all the way up the Lake Michigan coast. The old train station offices and baggage storage on the second level will be transformed into four affordable housing units with an abundant amount of natural light from the north and south that will materialize the detailing of the original wood timbers, the exposed masonry walls, and the new blackened steel architectural additions. These new insertions will set out to balance the innate character of the existing architecture by complementing its pleasurable shapes and surfaces with more subtle geometries, clean lines, and textural materials that will heighten the understanding of the space and generate a new atmosphere—one that laces the robust viscous ornament of the old with the light ephemeral placement of the new. The juxtaposition of these two things brings together a dynamic mix of new uses to reestablish this historic landmark as a vibrant community anchor.

Date : 2016
Client : private
Area : 15,000sf
Budget : $2,250,000
Photos : Still Projects